远红外线细菌屋是由其发射远红外线宝石和玻璃烧制而成的过滤材料。特殊的超微孔结构提供硝化细菌更广大的附着寄生面积...
中小企业占企业总数的99%、其中80%以上的工业生产存在污染问题,但由于一直没有适合它们的治污方案,从而使得中小企业排污日益加剧。 国务院发布的《...
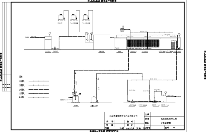
农村生活污水有机物和氨、氮含量较高,污水中还含有合成洗涤剂以及细菌、病毒、寄生虫卵等。针对这种污水水质特征,农村生活污水处理设备采用平板陶...
水藻为什么疯长?罪魁祸首是水中的氮、磷、钾严重超标,其中一大部分磷来自于排入河流湖泊的洗涤废水。据不完全统计,我国每年约有50-60万吨三聚磷...
化纤生产污水成份复杂, 常含有强酸、强碱、纤维素、醇类、果胶以及醛类、氰类、苯类等有毒物质,属处理难度较高的污水之一,博鑫精陶环保针对这类污...
近日,平板陶瓷膜膜法水处理技术成功应用于浙江某印染厂提标改造项目...
陶瓷膜微集成设备是由多个不同功能的模块组成,按照水质不同,可任意组合。例如: 模块A:其核心材料为黑晶碳板管,可有效去除污水中的杂质、悬浮...
地下污水处理厂,地上绿地花园,对周边环境污染小,安全性高,地下温度恒定而避免温度变化较大造成水质不稳定 ,使水质更易达标,并极大地利用了土...
陶平板陶瓷膜PC-MBR水处理技术除了作为污水深度处理及资源化技术之外,还可以作为一种污泥减量的重要技术和避免常规污水厂大量剩余污泥处置难题的一...
平板陶瓷膜—一种新型纳滤过滤材料,对细菌病毒的过滤率可达99%以上...
在石油勘探、开采、炼制、清罐、储运过程中,大量原油或油品与土壤、水或其它杂质形成含油污泥和污水,需无害化处理才能避免对环境造成危害。油泥...
丰城市金石新材料有限公司是一家集研发、生产、销售一体的新材料公司。2008年年初生产基地由广东佛山迁往江西省丰城市,并在广东佛山市设立销售办事处和仓库,以保证服务的及时和周到。 公司在新材料的研发上处于国内领先地位,产品涉及领域主要有铸造用泡沫陶瓷...
平板陶瓷膜以其精细的过滤效果适用于养殖海水的净化处理,极大提升了海鲜产品的成活率、产量,保证了海鲜产品在纯净的...
平板陶瓷膜组为核心组件的微集成设备经在浙江某饰品厂污水处理中应用成功。该饰品厂在饰品打磨抛光清洗过程中产生污水...
一图读懂|关于生态环境保护,金石环保能做啥?...
当下不少企业都进行了营销型网站建设,大家对于营销型网站的功能了解也非常清楚,但是任有许多企业的营销型网站在上线...
微信扫码 关注我们
24小时咨询热线
移动电话
Copyright © 2004-2011 DEDECMS. 织梦科技 版权所有 地址: 备案号: 网站地图